One need only look around to realize the extent to which the recovery of the avant-gardes of the 1960s and ’70s has brought into focus certain protagonists of that era, and to see how those architects still practicing do so in a complex and at times fraught relationship with their own history. Among them, Ricardo Bofill precisely embodies this tension between the present and the past. Of course, he is not the only figure, but his career is representative of architects who have continued to produce under changing paradigms and must face a distant work motivated by an ideology now alien to them.
In recent lectures one can witness the metamorphosis in Bofill’s professional persona and rhetoric, and the extent to which he intends to retroactively rewrite his own history in an operative way.1 If we compare the discourse used over time in his office, Taller de Arquitectura, it’s remarkable how his language has changed.2 One can sense the uneasy detachment from, if not rejection of, what he considers his major failures: Taller de Arquitectura’s projects until 1975, when his famous building Walden 7 was finished. It's a surprising circumstance, given that many of those projects were the object of a recent archive fever that has filled numerous pages in the glossiest of architectural publications, a phenomenon that has made the firm a contemporary case study.3 The ideological or stylistic causes motivating his change of attitude, however, shouldn’t diminish the power of the system-based design process that underpinned those first projects.
When Taller de Arquitectura was formed in the late ’60s, Spain faced a critical housing situation, much like it does today. By that time, massive immigration into major Spanish cities resulted in a housing shortage in urban areas. Therefore, during its early years, the Taller worked principally on housing that responded to urban growth. Their projects made clear a strong social consciousness and a firm belief in the need for new affordable ways of living. In response to this context, the Taller de Arquitectura forged an architecture attuned to progressive development and with the ability to mutate and absorb change.
The Taller’s first major housing project was Barrio Gaudí in Reus (1964–68), comprising 500 houses and other associated services. The form of Barrio Gaudí was conceived as a critique of rationalist blocks that already had a bad reputation due to difficulties with urban integration. Therefore, the street was included as part of the composition, incorporating other programs such as restaurants, shops, bars, and leisure spaces, constructing a city within a city and diluting the classic boundaries between the domestic and the public spheres.
The Barrio Gaudí was defined by a system for growth composed of eight typologies that could be fitted and arranged in order to allow the building to expand—at least theoretically—on command. Such capacity shows Taller de Arquitectura’s awareness of the instability of the shape of the city and their concern for changing patterns of urban migration. Thanks to the understanding of the building as a system, the project of Barrio Gaudí was reducible just to five construction drawings. Most of the construction details were decided and executed on site. What mattered was the conception of the system and the ability to implement it, not any “final” execution.

This emphasis on process was made especially clear in the composition of the office, in which construction disciplines mingled with more theoretical ones—including sociology, mathematics, and poetry. The Taller had a department dedicated exclusively to research, a novel idea at the time, which was composed of Manuel Núñez Yanowsky, Anna Bofill, and José Agustín Goytisolo, two architects and a poet/philosopher. Anna Bofill, Ricardo’s sister, was studying probability theory at that time under the guidance of the mathematician Eduard Bonet, who prompted her to work with geometric compositions and their possible random growth.
The difference between early projects from Taller de Arquitectura and those that served as the studio’s references—including the work of Archigram, Habitat 67, and theoretical projects like Friedman’s Spatial City—is that in Taller’s built projects there was no infrastructure into which prefabricated units were placed.4 5 6 Instead, their projects were built under extremely low-tech conditions, a fact that distinguishes them from Metabolist and other more technologically enthusiastic approaches.7 That fact, among other reasons, led the idea of the system to prevail over how it was materialized.
In fact, the firm sought to apply systemic architecture not only to a building, but to an entire city. In 1970, they began to work on La Ciudad en el Espacio (The City in the Space), where they studied a more complex method of aggregation and plan for growth in order to efficiently fill the available space. They designed a resilient system, as they called it, that could answer to continuously changing social needs. La Ciudad was supposed to be built in Madrid, and was to be consolidated, defined, and constructed depending on “the need of the people,” with unlimited potential for growth.

In order to execute their plans, a new judicial and economic framework was planned for the formation of this new type of city. They established a self-managed cooperative development company and a new economic system of belonging, where people did not own a flat but rather a share of the city. La Ciudad’s drawings were filled with ideological messages: “The City Is You,” “Coexistence,” “Mystical,” “Time for Everyone and Everything,” “NO to Schematic Urban Planning,” “Gold Is Time to Love,” etc. Unfortunately, one of the impediments that prevented the city from materializing was its ideological condition. In the middle of the design process, a party for La Ciudad was organized on site and, according to Bofill, over 100,000 people gathered. The police had to intervene, and that was the beginning of the end of the project. By then Franco’s government had already shown certain disagreements with the ideology of the project and the party was the perfect excuse to shut it down. At the time of its demise, more than 1,520 people were involved in the new city.


In the book published in 1968 about La Ciudad, its authors, including Bofill, describe the project as an attempt to gather together two trends in a new working method, “a method which departed from the moral attitude of the utopians, but also had the practical efficiency of realistic architecture.”8 Curiously, however, in recent interviews, Bofill simplifies the project to the latter trend—“a city that was the result of demand.”9 Flirting, in that way, with neoliberal approaches and rejecting its original ideology, Bofill ditches the project’s utopian whims, saying, “one day I can talk about The City in the Space if you want to know what not to do.”
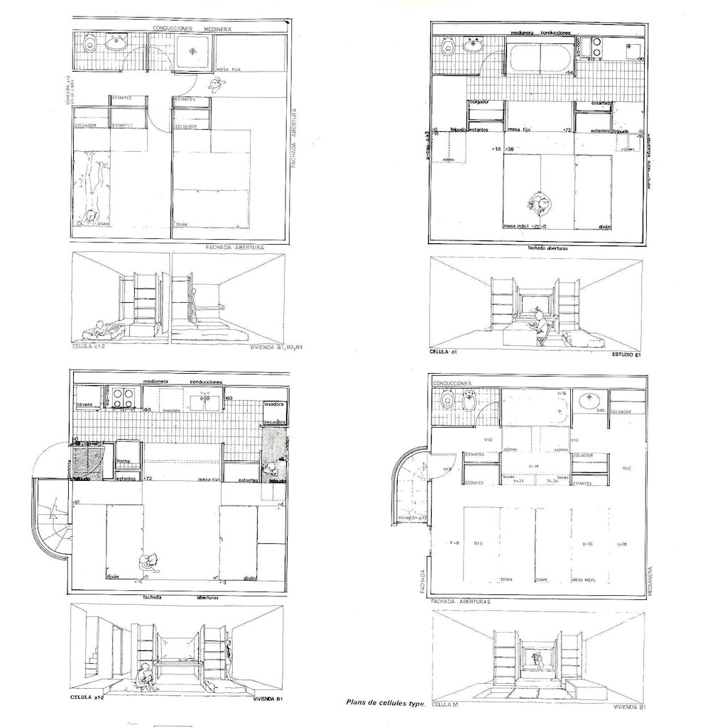
Unlike what it happened with La Ciudad, in Walden 7 (1970–75) part of the Taller’s urban-scaled ideals were actually materialized. The housing development was intended to be permanently unfinished, allowing both residents and designers to envision what it could become. Designed in a grid Walden 7’s 28-square-meter residential units are arranged along a double axis and four voids. Units can be connected together allowing for a wide range of housing typologies, from studio units defined by a single module, to duplex apartments composed of four modules. Unlike what happened in the Barrio Gaudí project, the complex geometry used at Walden 7 allows for different apartment types occupying various levels based on the same spatial unit. This complex system of growth has enabled the apartments to reshape over time.

The design of a domestic system based on a sum of distributed residential units underscores the equality of domestic space for the Taller at the time. This allows one to conceive of the house as an organism able to grow, change, and shrink over time. And this is precisely where the concept of a permanently unfinished architecture gains its meaning: An extremely rigid system, in the end, is the most adaptable one.
Today’s interest in Walden probably lies in its architects’ willingness to rewrite certain codes in relation to the city, the house, and the construction of a community through architecture. In its reformulation of certain domestic and political clichés, the design reveals architecture as a critical tool rather than a mere stooge of demand. On the small scale, the project reformulates the way the house relates to the urban sphere.
Further, from a formal point of view, some of the first projects that came out of Taller de Arquitectura allow us to think of an architecture defined by the use of systems and the creation of architectural laws that go beyond pre-existing forms and technological conditions.
The change in Bofill’s presentation of his early projects implicitly eliminates any ideology from his early work. He has removed any trace of prior idealism in an operation of commercialization and globalization of the office. It goes without saying that historiography is based on the continuous reinterpretation of the past, on the continuous reformulation of an object under discontinuous and changing interpretation. But when what changes is the author’s own statement about his work, it is important to understand his possible motivations and confront these changing views over time. Through such an examination we may glean a critical understanding of a building’s history and what it means for the present day. Ricardo Bofill’s evolving rhetoric reveals the extent to which an ideological interpretation of the architectural object can neutralize its original nature, or how it can be unceasingly reappropriated under new paradigms. This might be something like, as Simon Reynolds pointed out, the strange feeling of uneasiness that compels us to visit a punk exhibition within a museum, in which obscene gestures have become a souvenir behind a thin layer of acrylic.10
However, beyond the debate about the political capabilities of form, revisiting systems invites us to rethink their validity as a design tool. Systems such as Bofill’s, and those of that generation of architects alongside whom he worked, allow us to think of architecture as an always unfinished process—one capable of endless adaptation, in response to the simplest and most immutable building unit or the changing conditions of the world around us.
-
See, for instance, Bofill’s lecture at the Architectural Association on March 5, 2015: aaschool.ac.uk/VIDEO/lecture.php. ↩
-
See: L’architecture d’aujourd’hui: Espagne, Madrid, Barcelone, no. 149 (1970): 33–41; L’architecture d’aujourd’hui: Les espaces de l’architecte, no. 182 (1975): 57-96 [which includes the “Manifest du diable sur l’architecture et l’urbanisme,” by José Agustín Goytisolo]; GA Architect: Ricardo Bofill, Taller de Arquitectura, no. 4 (Tokyo: A.D.A Edita, 1985); Architectural Design, vol. 45, no. 7 (1975): 402–17. ↩
-
Mono.Kultur, Pin-Up and Apartamento, among others. ↩
-
A partner, Peter Hodgkinson, had worked with Peter Cook. Nevertheless, Ricardo Bofill presents both himself and Taller de Arquitectura as anti-Archigram. In the aforementioned AA lecture he refers to the City in Space as “an Archigram’s counter-theory.” ↩
-
“The Habitat building in Montreal was extremely important for us and caused a great impact in the way we approached future projects. The only building that perhaps didn’t follow that line was Barrio Gaudí.” From interview with Manolo Núñez (Taller de Arquitectura), in Pedro García Hernández, La agregación modular como mecanismo proyectual residencial en España: el Taller de Arquitectura (PhD diss., Universidad Ramon Llull, 2013). ↩
-
Reyner Banham, Megastructure: Urban Futures of the Recent Past (London: Thames and Hudson, 1976), 224. The article “Megastructure” was published in Architectural Design, vol. 45, no. 7 (1975), which included the work by Ricardo Bofill and Taller de Arquitectura. ↩
-
In fact, one of the most interesting issues about them is that they were carried out under conditions of scarcity and limited budgets. ↩
-
Ricardo Bofill and Taller de Arquitectura, Hacia una formalización de la ciudad en el espacio (Barcelona: Blume, 1968), 1. ↩
-
This is not the first time he makes this assertion: “It was a light prefabricated system that we invented, a whole bean-based meccano that allowed us to build without prefiguring the end of the project. I mean that this project was the result of economical, social, and legal parameters which stem from demand.” Interview with Ricardo Bofill in Josep Lluís Solé and Jordi Amigó, Walden 7 i mig (Barcelona: Ajuntament de Sant Just Desvern, 1985), 21–22. ↩
-
Simon Reynolds, Retromania: Pop Culture’s Addiction to Its Own Past (New York: Faber & Faber, 2011). ↩
Guillermo López and Anna Puigjaner are principals of the architectural office MAIO and coeditors of the journal Quaderns d’Arquitectura i Urbanisme.